Tűzvédelmi csatorna PYROLINE® Con S PLC EI90

Rend. szám 7217870 | EAN-kód 4012196836642

1000 mm
Termékleírás
Termékleírás
Az MSZ EN 13501-1, A1-es tűzvédelmi osztályú, víz-és fagyálló üvegszálas könnyűbetonból készült tűzvédelmi csatorna, a kábelek elhelyezésére a menekülési és mentési útvonalakon. EI90-es besorolás, az EN 13501-2-nek megfelelő szerelőcsatorna, EN 1366-5 szerinti vizsgálatok alapján Belső tűz (kábeltűz) esetén a csatorna megakadályozza a tűz átterjedését egyik tűzszakaszról a másikra

A csatornát konzolokra vagy mennyezeti rögzítésnél függesztő oszlopokkal és konzolokkal illetve menetes rúddal függesztett U-keresztprofilra kell szerelni Készre szerelt összekötők gondoskodnak a gyors helyszíni szerelésről, a laza fedél gyors ellenőrzést és átalakítást tesz lehetővé.

Összekötőcsavarokkal és tömítőszalagokkal.


  • Communautés Européennes, az EK iránymutatásai szerinti megfelelőségi nyilatkozat
Műszaki adatok

Műszaki adatok

A lángálló oldalak darabszáma 4
A szigetelőanyag nyersanyaga Üvegszál-erősítésű könnyűbeton
Anyag üvegszál-erősítésű könnyűbeton
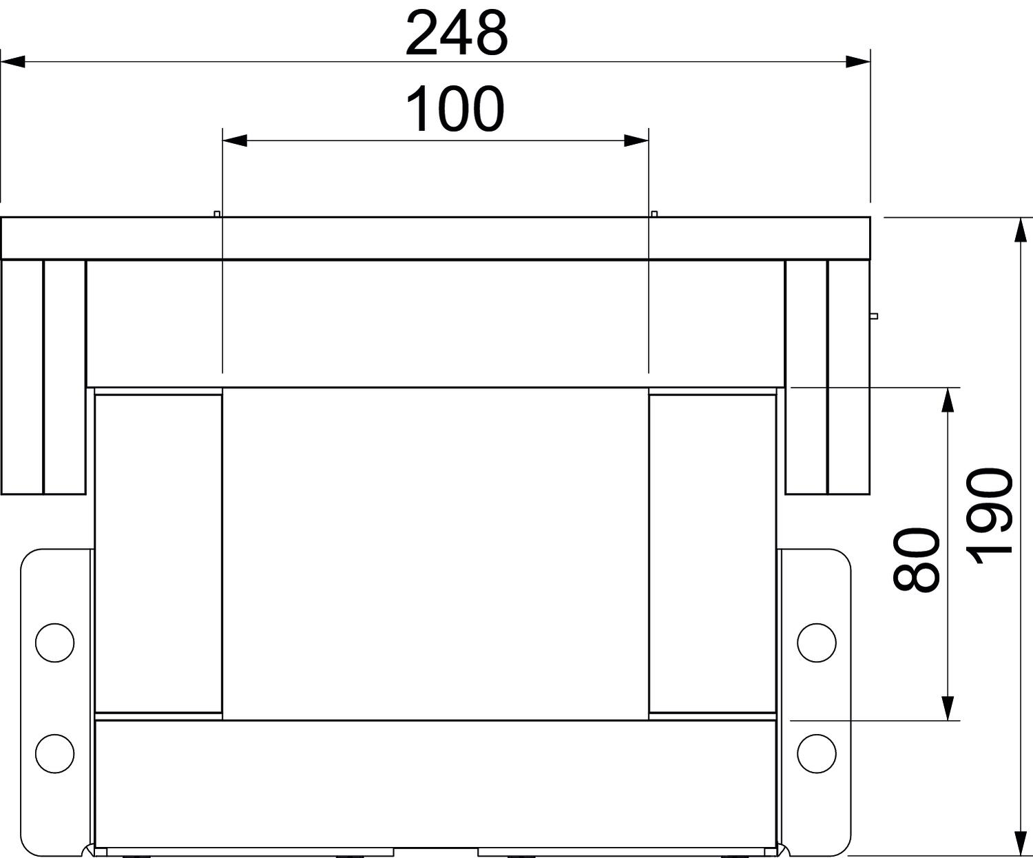
b méret 100 mm
B méret 248 mm
Burkolás nélkül
EI besorolás - szerelő csatorna 90
Fedélrögzítés különálló
h méret 80 mm
H méret 190 mm
Hossz 1000 mm
Méret 1000x100x80
Perforálással nem
Szín szürke
Minden típus

Minden típus

Típus Hossz B méret b méret H méret h méret Rend. szám Mennyiség Legkisebb eladási egység
PLCS D090810 1000 mm 248 mm 100 mm 190 mm 80 mm 7217870
1 m
PLCS D091220 1000 mm 348 mm 200 mm 230 mm 120 mm 7217874
1 m
Tartozék

Rendszertartozékok

Termékek Típus Rend. szám Mennyiség Legkisebb eladási egység
90°-idom EI90, a PLCS D090810 típusú tűzvédelmi csatornához 90°-idom EI90, a PLCS D090810 típusú tűzvédelmi csatornához PLCS B090810 7217890
1 Darab
T-idom EI90, a PLCS D090810 típusú tűzvédelmi csatornához T-idom EI90, a PLCS D090810 típusú tűzvédelmi csatornához PLCS T090810 7217910
1 Darab
Függőleges emelkedő EI90,  a PLCS D090810 típusú tűzvédelmi csatornához Függőleges emelkedő EI90, a PLCS D090810 típusú tűzvédelmi csatornához PLCS VR090810 7217930
1 Darab
Függőleges eső idom EI90 a PLCS D090810 típusú tűzvédelmi csatornához Függőleges eső idom EI90 a PLCS D090810 típusú tűzvédelmi csatornához PLCS VF090810 7217950
1 Darab
Végelem EI90, PLCS D090810 típusú  tűzvédelmi csatornához Végelem EI90, PLCS D090810 típusú tűzvédelmi csatornához PLCS E090810 7217990
1 Darab
Falicsatlakozó gallér EI90, PLCS D090810 típusú tűzvédelmi csatornához Falicsatlakozó gallér EI90, PLCS D090810 típusú tűzvédelmi csatornához PLCS W090810 7217970
1 Darab
Aufdoppelungsstück für Brandschutzkanal PYROLINE® Con Aufdoppelungsstück für Brandschutzkanal PYROLINE® Con KAD-8040 7215464
1 Darab
Aufdoppelungsstück für Brandschutzkanal PYROLINE® Con Aufdoppelungsstück für Brandschutzkanal PYROLINE® Con KAD-10040 7215462
1 Darab
tűzvédelmi csatorna habarcs tűzvédelmi csatorna habarcs KTM 7215500
1 Darab
Tűzgátló tömítés tubusban Tűzgátló tömítés tubusban DSX-K 7202300
1 Darab
Válaszfal 45 FS Válaszfal 45 FS TSG 45 FS 6062033
3 m
Válaszfal 60 FS Válaszfal 60 FS TSG 60 FS 6062068
3 m
Schraube für Trennstegbefestigung, KRS 6x30 Schraube für Trennstegbefestigung, KRS 6x30 KRS 6x30 3498100
200 Darab
Letöltések

Letöltés

EU megfelelőségi nyilatkozat PLCS D090810 / 7217870 , 0.20MB , pdf
Letöltés
Teljesítmény-nyilatkozat PLCS D090810 / 7217870 , 0.31MB , pdf
Letöltés

Ehhez a termékhez nem áll rendelkezésre kiírási szöveg